Call 01480 8-9-10-11 | Email Us | Mon-Fri 9am–5pm | Customer Login | Vacancies | Videos
Cascos ATL MOT Four Post Lifts
Whether it is for an existing MOT Bay or a completely new facility, we have a range of options to suit all styles of bay
All of our ATL lifts are manufactured 100% in Spain by Cascos, because Cascos have been manufacturing lifts for UK MOT Testing for decades and they are one of the longest serving lift manufacturers to UK testing standards existing.
To this day, Cascos still have one of the few 4 Post Lifts that will fit into the recesses and MOT bays of the smallest bays, making them an ideal replacement for those mature testing facilities working on ‘Grandfather Rights’. At the other end of the product range, and more recent criteria, Cascos have a premium quality ATL lift range which offers the most refined product in its sector. In fact, Cascos were one of the first companies to be involved with ATL lifts when they supplied the entire Japanese market as far back as 2004, when most European manufacturers’ products were still in their infancy.
All Cascos lifts feature traditional Pneumatic Locks - the original and best system!
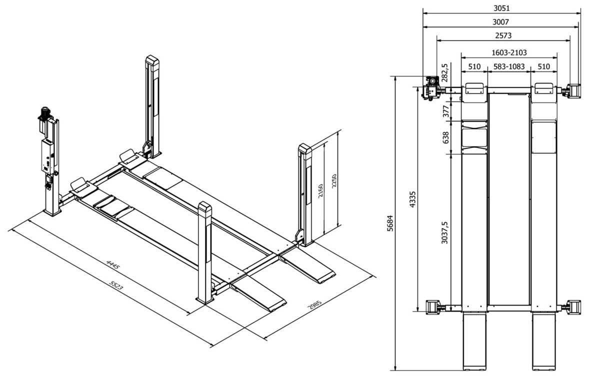
C441MOTATL - 4000kg Capacity & 4.335m Platform Length (Class IV)
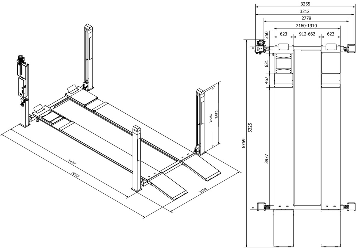
C451MOTATL - 5000kg Capacity & 5.325m Platform Length (Class VII)
C451XLMOTATL - 5000kg Capacity & 5.7m Platform Length (Class VII)
The main features of our ATL / MOT Lifts range are...
Specifically designed for ATL
In typical Cascos Lifts style, the ATL lifts are the result of an extensive ‘design and perfect’ project, culminating in lifts that were built specifically for use in ATL applications, rather than taking a standard lift and modifying it. The end result is a product that is refined where others are merely adapted. For example, unsightly cables for the shaker plates are neatly housed and hidden through dedicated tubes welded to the platforms. Additionally, in light of the vibration created by the play detector function, the lift is strengthened accordingly to ensure that, long term, the lift can cope with this adverse side-effect.
Superior-strength platforms
Our platforms are reinforced by hot rolled profiles (a bit like an RSJ). This avoids any deformation and bears the weight better, keeping the platform totally flat/straight over the lifetime of the lift.
Peace of mind security systems
Cascos use a double mechanical safety system (security ladders and safety bars) coupled with a pneumatic security system, providing far better reliability than electromagnetic devices used on budget lifts.
| C441 MOT ATL Dimensions |
![]() |
| C451 MOT ATL Dimensions |
![]() |
| C451XL MOT ATL Dimensions |
![]() |








